Kiadó albérlet, Budapest XIV. kerület

Főoldal » Kiadó albérlet, Budapest XIV. kerület » Kiadó albérlet, Budapest XIV. kerület

260 000 Ft

€665
Hirdető adatai

Csakajda Krisztina

Üzenet írása
Üzeneted legalább 10 karakter legyen!


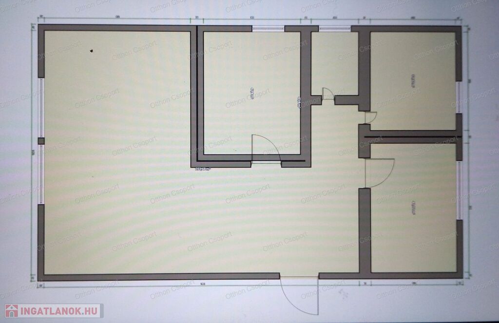
Kiadó a XIV. kerületben, a Hermina úton, a Városligettől mindössze 30 méterre egy 47 m²-es, részben bútorozott, frissen felújított, világos lakás.

Bérleti díj: 260 000 Ft/hó

Közös költség: 13 000 Ft/hó

Kocsibeálló: +30 000 Ft/hó (opcionális)

Kaució: 2 havi bérleti díj

Minimum bérleti idő: 12 hónap

Költözhető: azonnal

Elrendezés:

nappali étkező sarokkal, ülőgarnitúrával, nagy beépített szekrénnyel és napos erkéllyel,

hálószoba,

konyha gépekkel (mosógép, hűtő, mikró),

fürdőszoba káddal és ablakkal,

külön WC ablakkal.

A lakás déli fekvésű, csendes, kertre néző, napfényes. Gépesített (mosógép, hűtő, mikró), az árban benne van több konyhai eszköz is (kenyérpirító, vízforraló, melegszendvicssütő, étkészlet, edények). Igény esetén internet és TV előfizetés aktiválható.

A lakás saját víz-, gáz- és villanyórával rendelkezik, fűtése egyedi.

Közlekedés kiváló, a troli a ház előtt áll meg.

Feltételek: maximum 2 felnőtt részére kiadó, gyermek nem hozható. Kisállat előzetes egyeztetés alapján, dohányzás nem engedett.

Hívjon most!

Lakás adatai

Magasföldszint

Tégla

Nincs megadva

Nincs megadva

Nincs megadva

47 négyzetméter

Nincs megadva

Nincs megadva

Nincs megadva

Nincs megadva